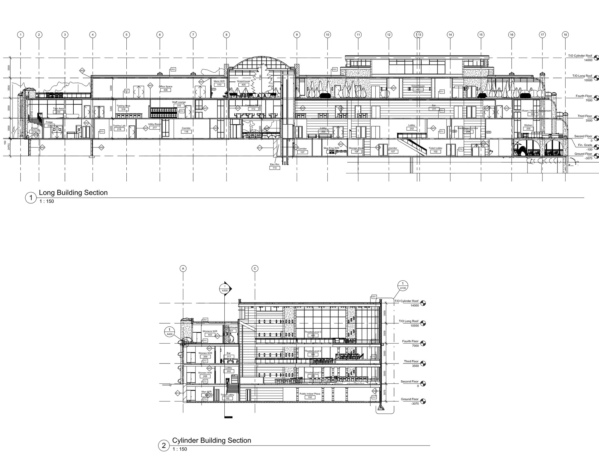
Concept video of renovating an old building located in Kingston, Ontario into a brewery/banquet hall/theatre. Design Team: Matthew Fraboni, Jordan Bartsch, Matthew Francoeur, and Kamilie Webster.